アルミ笠木AM型笠木幅210mm ブロンズ・ビューブラウン・シェイクブラウン・ブラック・ホワイト・ステンカラー  L=1000mm~

サイズ

ご希望笠木の長さLをご指定ください。mm単位で製作できますので正確な数字をご指定できます。単位はmmです。例:1895mm=1m89㎝5㎜

1. L寸法=

1000㎜から3000㎜の製作範囲内で笠木の長さLをご入力ください。

カラー
ブロンズ(B1)
ビューブラウン(B3)
シェイクブラウン(B4)
ブラック(T1)
ホワイト(W1)
ステンカラー(U4)
笠木端部に取り付けるエンドキャップの形状をお選びください。※キャップカラーは笠木本体と同じカラーになります。
笠木両端部が表しになる躯体エンド部納まりと、壁面で納まる壁面部納まりのどちらかよりエンドキャップの形状をお選び下さい。
躯体エンド部納まり
笠木端部が表しになる場合こちらをお選びください。※キャップカラーは笠木本体と同じカラーになります。
壁面部納まり
壁面で納まる場合はこちらをお選び下さい。
購入内容の内訳
サイズ変更
1. L寸法=
カラー変更
笠木端部に取り付けるエンドキャップの形状をお選びください。※キャップカラーは笠木本体と同じカラーになります。変更
躯体エンド部納まり
壁面部納まり
注文数
販売価格(税込み)
9,900

こちらの商品は、納品後のご返品、交換依頼は受付できません。沖縄、及び離島につきまして、配達不可エリアとなります。

お届け日の目安
納期10日間/土日祝除く

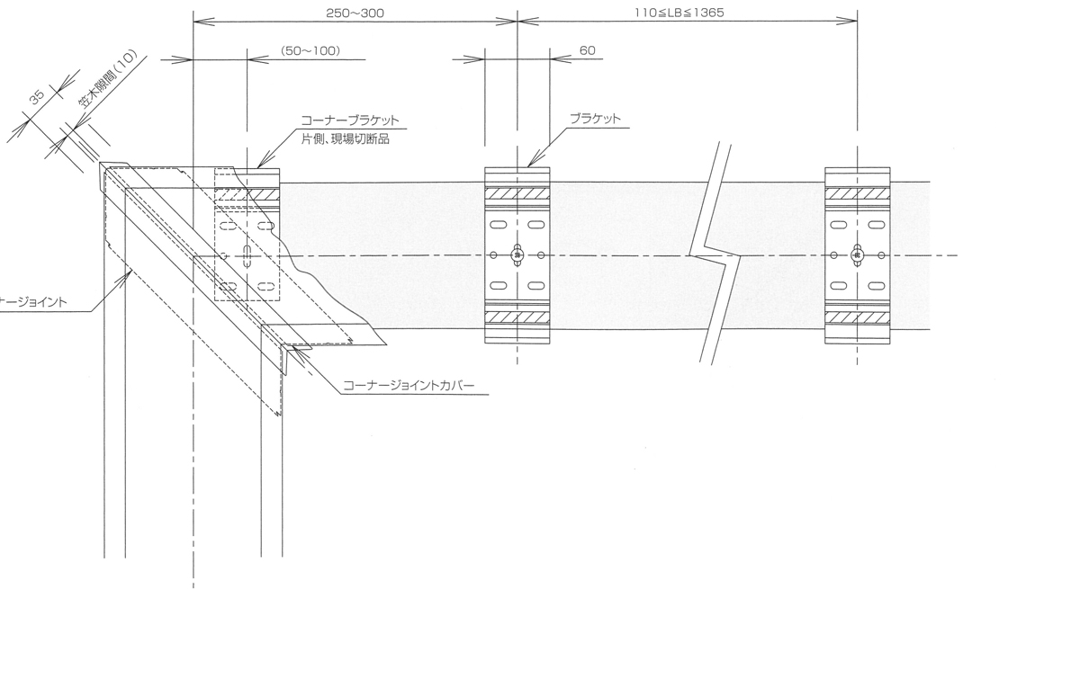
ジョイント部部品・ブラケット構成図

笠木のジョイント部分に使用する「ジョイントカバー」「ジョイント」「ジョイントブラケット」の構成図になります。

本体取り付けブラケットのピッチ寸法です。

笠木同士のジョイント部分は、10㎜の隙間目地を付けて、ジョイントカバーを取り付けてください。

コーナー部納まり図

笠木コーナー部の納まりになります。

「コーナージョイント」を下に置き、コーナー部分を合わせるように笠木を取り付けます。

コーナーの合わせ部分は、10㎜の隙間目地を入れてから「コーナージョイントカバー」を取り付けてください。

アルミ笠木AM型用各種カバー

アルミ笠木AM型用ジョイントカバーをご希望の方はこちらからお願いします。

リンク付き画像

 

アルミ笠木AM型用コーナーカバーをご希望の方はこちらからお願いします。

リンク付き画像

雨水の浸入を防ぎ、ベランダやバルコニー、パラペットなど、住まいを守る「笠木」について施工方法など動画で解説いたします。

注文数
販売価格(税込み)
9,900

こちらの商品は、納品後のご返品、交換依頼は受付できません。沖縄、及び離島につきまして、配達不可エリアとなります。

お届け日の目安
納期10日間/土日祝除く
木造建築物向けに開発された笠木です。上面フラットで、両角に小さなスラントとアールが付いたデザインが特徴です。笠木幅210mm 長さは1000mm~3000mm以内でご希望の長さを㎜単位でご注文できます。
販売価格(税込み)
9,900
カートに入れる
購入内容の内訳
サイズ変更
1. L寸法=
カラー変更
笠木端部に取り付けるエンドキャップの形状をお選びください。※キャップカラーは笠木本体と同じカラーになります。変更
躯体エンド部納まり
壁面部納まり
注文数変更
指定されていません
返品不可
送料長物
取付用ブラケット規定数付属
エンドキャップ2枚付属
躯体への固定用ビスは含まれておりません。

こちらの商品は、納品後のご返品、交換依頼は受付できません。沖縄、及び離島につきまして、配達不可エリアとなります。

お届け日の目安
納期10日間/土日祝除く
お借入金額 万円
お借入期間
お借入金利5.9 %

元利均等方式でご返済額を算出します。
お借入れの際の目安としてご利用ください。

毎月のご返済額
1年間のご返済総額
ご返済総額

※このシミュレーションでの試算結果は参考値です。実際のご返済内容とは異なる場合がありますので、あくまでも目安としてご利用してください。

現在のカートの中
合計数量
0
合計金額
0
クレジットカード
クレジットカードでお支払いが可能です。ポイントも貯まってお得です!
お電話でのお問い合わせ
月〜金(9:00〜12:00/13:00〜16:00)
商品お問い合わせ

欲しい商品が見つからない場合は下記フォームからお聞かせください

営業日カレンダー
1
2026
    123
45678910
11121314151617
18192021222324
25262728293031
2
2026
1234567
891011121314
15161718192021
22232425262728
フォームからお問い合わせ
電話でお問い合わせ
通話無料
月〜金(9:00〜12:00/13:00〜16:00)